Kategorie | Museumsbau
Auftraggeber | Kunstmeile Krems Betriebs GmbH
Ort | Krems - Stein | NÖ
Planung | 2006-2007
Ausführung | 2007-2008
Koop. mit Arch. Fritz und Lukas Göbl
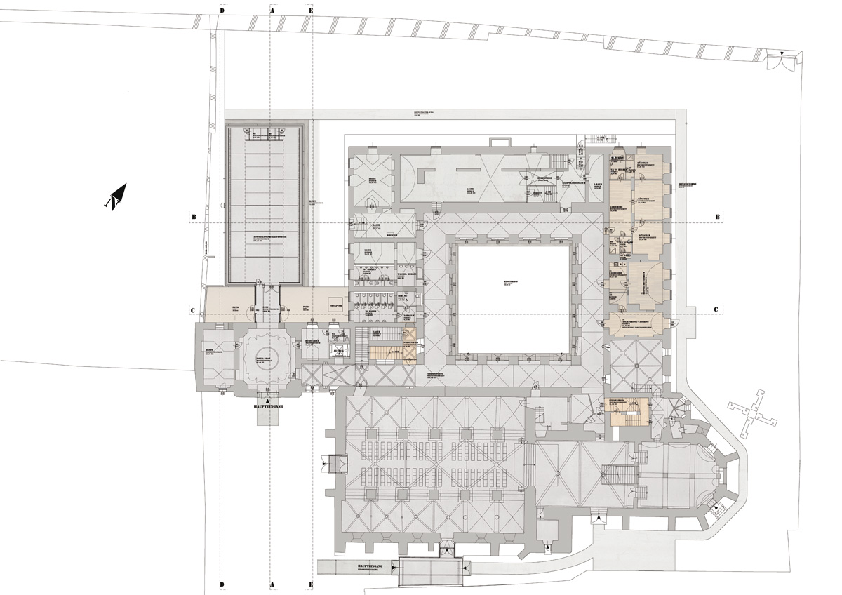
Das Forum Frohner, Teil des Kulturzentrums Minoritenplatz in Krems-Stein hat seinen Anfang bereits am Steiner Minoritenplatz.
Das alte Haupttor wurde durch eine transparente Konstruktion ersetzt, durch die man in einen barocken Zentralraum – das Foyer des Forum Frohner – schreitet. An das Foyer sind auch die Frohner-Lounge, das Depot und die Ausstellungshalle angegliedert. Der Neubauteil, die Ausstellungshalle des Forum Frohner, ist im Klostergarten im Anschluss an das Foyer situiert. Ein Glasgang verbindet und kontrastiert die beiden massiven Bauteile (Alt und Neu).
Die Ausstellungshalle selbst orientiert sich klima- sowie lichttechnisch an internationalen Standards und bildet für Kunstwerke einen starken, aber gleichzeitig auch zurückhaltenden Rahmen. Es werden keine Farben eingesetzt. Die verwendeten Materialien nehmen Bezug auf die Kunst Adolf Frohners und auf die puristische Lehre des Bettelordens der Minoriten.
Die Wände sind in Ortbeton ausgeführt, wobei in Anlehnung an Frohners Kunst “das Schöne im Häßlichen zu finden” auf teure Sichtbetonausführungen verzichtet wurde und der Beton in seiner Einfachheit und Unperfektheit zur Wirkung kommt. Eine den Betonwänden vorgesetzte Schale ist für die Hängung und Montage der Bilder ausgeführt, sie kann variabel gestaltet werden und sichert eine maximale Flexibilität im Ausstellungsbetrieb. Die Wände sind nur an drei Seiten und nicht raumhoch ausgeführt, um den Charakter des Betonbaus im Innenraum zur Geltung kommen zu lassen.
In Abstand zur Betonrückwand und in der Hauptachse des Forums ist eine Prellwand in gleicher Weise wie die Vorsatzschale realisiert. Diese Prellwand bietet den prominentesten Platz zur Bilderhängung in der Ausstellungs-halle.
Die Decke der Halle wurde mit Heradesign-Platten ausgeführt. Diese normalerweise eher im Industrie- und Tiefbau eingesetzten Platten zeichnen sich durch ihre formale Nähe zu den frühen Werken Frohners (Matratzenbilder) aus. Sie harmonieren mit der Rohheit des Ortbetons der Wände und verfügen weiters über hervorragende Schallabsorptionswerte. In der Mitte ist eine Lichtdecke vorgesehen. Diese Decke ist als „white cube“ gestaltet, sucht die formale Nähe zu den vorgesetzten Schalen der Wände und stellt einen Kontrast zu den „rohen“ Elementen des Raumes her.
Die puristische Philosophie des Bettelordens der Minoriten wurde in eine adäquate Architektursprache übersetzt, welche mit einfachen und authentischen Materialien und Formen operiert. Die Räume sollen weder selbstbewusst noch selbstbestimmt wirken, sie sollen selbstverständlich wirken. (Text Lukas Göbl)




















